Ei håndlaget laftehytte. Forhåndsbygget. Plug & Play Naturlig tidløs.
Vi produserer unike og eksklusive modulære laftehytter i Europa. Våre boliger leveres nøkkelferdige og kan tas i bruk fra leveringsdagen.
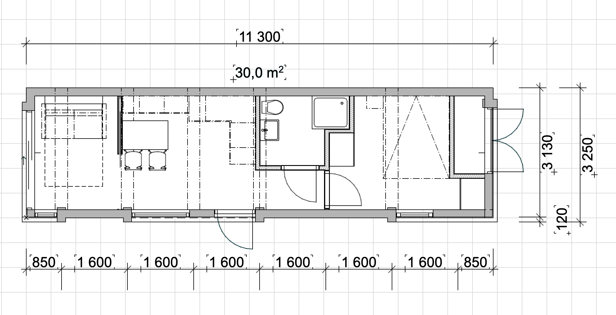
Vår nyeste modell, HyggeBox, er nå tilgjengelig for bestilling. Dette er en romslig bolig som er designet for komfortabel helårsbruk.
Vegger og hovedkonstruksjon er bygget av 200 mm massivt, naturlig tømmer. Alle hus bygges og monteres av erfarne tømrere etter tradisjonelle byggeteknikker. Sammenføyningene mellom tømmerstokkene gjøres helt lufttette med vår unike teknologi, noe som gjør husene svært varme og lune – selv i vinterperioder.
Gulv og tak er godt isolert, og boligen kan brukes selv i de kaldeste områdene i Nord-Europa.
Huset leveres med fullt utstyrt kjøkken og bad. Alle rom har gulvvarme og LED-belysning. Planløsningen er praktisk og gjennomtenkt, med god plass til både opphold og overnatting for opptil fire personer.
Standard størrelse er 30 m², men modellen kan også bygges i andre størrelser. Det er også mulig å skape større boliger ved å kombinere flere moduler.
Leveringstiden er for tiden cirka 8–10 uker.
Ekstrautstyr kan inkludere peis, luft-til-luft varmepumpe / aircondition og en komplett off-grid-pakke med solcelleanlegg og backup-generator.
Er du interessert? Ta gjerne kontakt med oss og be om en produktbrosjyre.
Minihus. Store gleder.
Håndlaget av ekte tømmerstokker
Hvert hus er laget av nøye utvalgte, ufreste 20 cm tykke tømmerstokker – formet for hånd.Klar til bruk
Leveres ferdig bygget med kjøkken, bad, belysning og elektrisk gulvvarme installert.Naturlig isolert
Treverk regulerer inneklimaet. PIR- og mineralullisolasjon holder temperaturen stabil året rundt.Leveres i ett stykke
Ingen bygging på stedet. Huset løftes på plass med kran. Raskt og problemfritt.Tidløs nordisk design
Ren, naturlig estetikk inspirert av skandinavisk enkelhet og holdbarhet.Unik av natur
Ingen hus er like. Hver stokk har sin egen historie, noe som gjør hver HyggeBox unik.
PRIS: 1 150 000 KR (Prisen inkluderer levering og mva)
Dette huset kan også leveres som en off-grid hytte for avsidesliggende steder eller tomter uten vann- og strømtilkobling. Disse off-grid hyttene leveres med ferskvannstank med pumpesystem, solcelleanlegg med batterier og strømaggregat (gass/diesel), peis, Cinderella-toalett, dusjsystem, septiktank (ved behov), gassdrevet varmtvannsbereder og mange andre tilvalg. Det kan også monteres store panoramavinduer i taket, slik at man kan nyte nattehimmelen eller nordlyset.
PRIS OFF-GRID MODEL: 1 350 000 KR (Prisen inkluderer levering og mva)

