HyggeBox – modulaire blokhut die als thuis voelt
Wij produceren unieke, modulaire blokhutten van hoge kwaliteit in Europa. Onze woningen worden sleutelklaar geleverd en zijn direct vanaf de dag van levering klaar voor gebruik.
Ons nieuwste model, HyggeBox, is nu beschikbaar voor bestelling. Dit is een ruime woning die geschikt is voor comfortabel wonen het hele jaar door.
De wanden en de hoofdconstructie zijn gemaakt van 200 mm massieve, natuurlijke houten balken. Alle woningen worden gebouwd en gemonteerd door ervaren timmerlieden volgens traditionele bouwmethoden. De verbindingen tussen de balken worden volledig luchtdicht afgewerkt met onze unieke technologie, waardoor de woningen zelfs in de winter uitzonderlijk warm en comfortabel zijn.
De vloer en het dak zijn volledig geïsoleerd, waardoor de woning geschikt is voor gebruik, zelfs in de koudste regio’s van Noord-Europa.
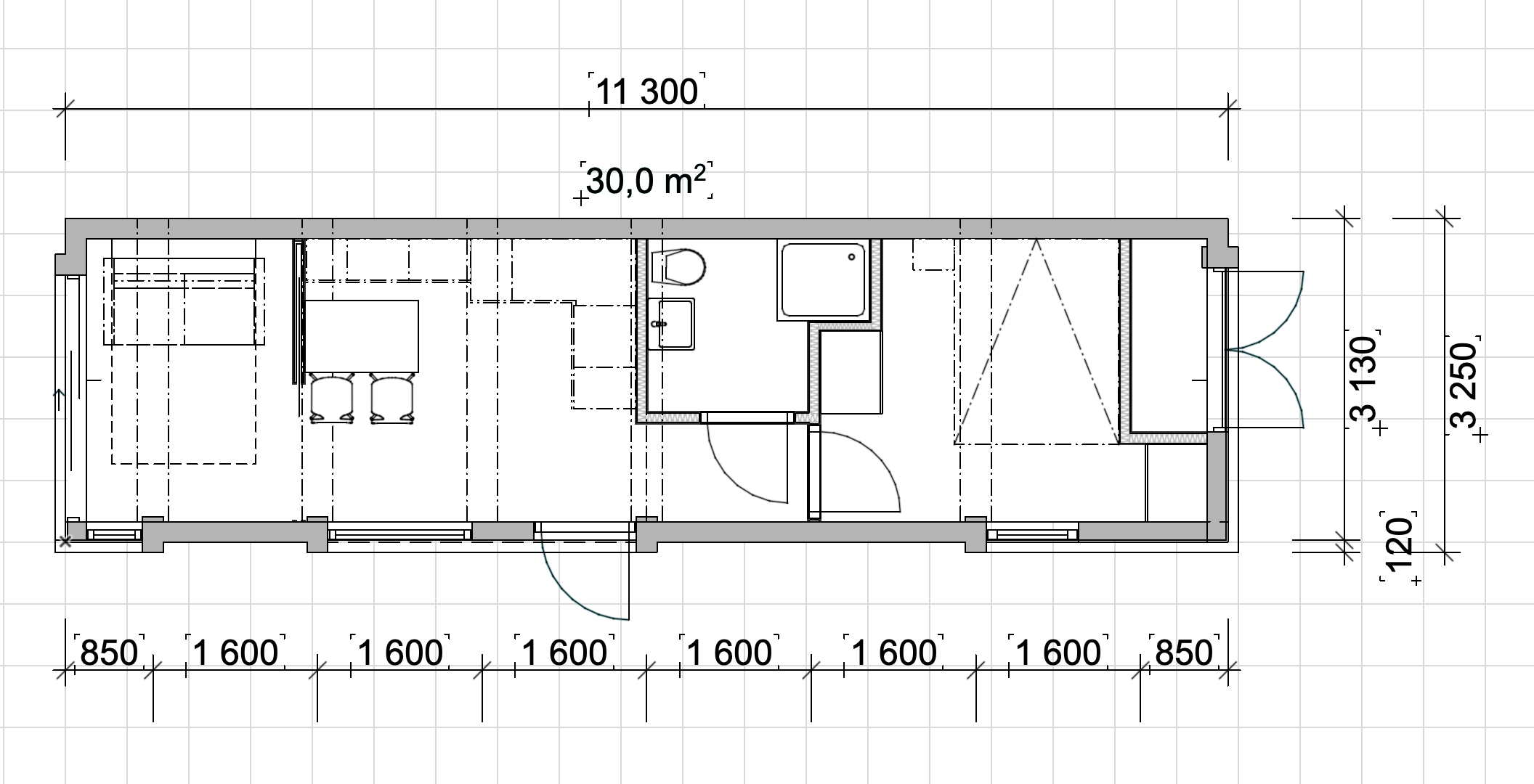
De woning wordt geleverd met een volledig ingerichte keuken en badkamer. Alle ruimtes zijn voorzien van vloerverwarming en LED-verlichting. De plattegrond is praktisch en doordacht, met voldoende woon- en slaapruimte voor maximaal vier personen.
De standaardafmeting van de woning is 30 m², maar dit model kan ook in andere formaten worden gebouwd. Het is bovendien mogelijk om grotere woningen te realiseren door meerdere modules met elkaar te combineren.
De huidige levertijd bedraagt ongeveer 8–10 weken.
Optionele extra’s zijn onder andere een open haard, een lucht-lucht warmtepomp / airconditioningsysteem en een compleet off-grid pakket met zonnepanelen en een noodgenerator.
Bent u geïnteresseerd? Neem dan gerust contact met ons op en vraag onze brochure aan.

